Chalet in Curaçao

€ 195.000

PODS by Dormio Resort Curaçao – POD Sole

Wakker worden in uw eigen luxe POD op Curaçao met uitzicht over de tropische tuin op een
resort met zwembaden, strand, restaurants en sportfaciliteiten? Maak gemiddeld 12%*netto
rendement op uw vermogen door toeristische verhuur met totale ontzorging vanuit PODS
Resort. PODS Resort wordt ontwikkeld op de meest gewilde locatie van Curaçao, Jan Thiel.

*bij een gemiddelde bezettingsgraad van 75% (huidige gem. bezettingsgraad op Curacao), hypothecaire financiering mogelijk tot 50%, ROI gaat dan naar 18%. Er wordt verwacht vanuit de VvE dat er 2% per jaar van het rendement wordt gereserveerd voor vervanging PODS tussen de 10 en 15 jaar.

Kenmerken

  • Prijs € 195.000
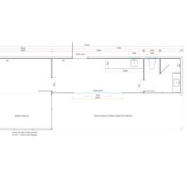
  • Woonoppervlakte 52 m2
  • Perceeloppervlakte 198 m2
  • Soort woning Chalet
  • Bouwvorm Nieuwbouw
  • Bouwjaar 2024
  • Aantal slaapkamers 1
  • Aantal badkamers 1
  • Parkeervoorziening 1
  • Woningfaciliteiten
    • Zwembad

Location