Vrijstaande woning in Murcia, Spanje

€ 419.900

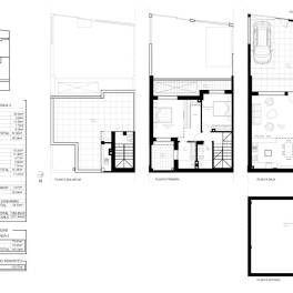
Vrijstaande villa op een privéperceel, ontworpen voor comfort, ruimte en functionaliteit. De woning staat op een perceel van circa 160 m² en heeft een bebouwde oppervlakte van 143 m², verdeeld over twee verdiepingen en een privé solarium.Op de begane grond beschikt het perceel over een tuin, parkeergelegenheid en een privézwembad, wat zorgt voor een aangename buitenruimte. Binnen vindt u een lichte woon-eetkamer, een volledig uitgeruste keuken, één slaapkamer en één badkamer.De eerste verdieping telt twee extra slaapkamers en twee badkamers, waarvan één en suite met inloopkast in de hoofdslaapkamer. Via een interne trap bereikt u het privé solarium van ongeveer 30 m², ideaal om het mediterrane klimaat het hele jaar door te benutten.InclusiefPrivézwembad (4,8 x 2,8 m)AirconditioningHuishoudelijke apparatenVolledige binnen- en buitenverlichtingVloerverwarming in drie badkamersInloopkast in de hoofdslaapkamerInbouwkasten met ladesGelegen in een bevoorrechte omgeving, op korte afstand van het natuurgebied Las Salinas de San Pedro, en op loopafstand van alle voorzieningen. De Mediterrane stranden liggen op slechts 20 minuten lopen.KENMERKEN: Afstand tot het strand: 3,2 kmBouwjaar: 2026Slaapkamers: 3Badkamers: 2Keuken: Ingericht Balkon: JaAfstand tot golfbaan: 10 kmAfstand tot de luchthaven: 80 kmDicht bij openbaar vervoer: JaGemeenschappelijke tuin: NeeGereserveerde gemeenschap: Ja, beperkte toegang voor eigenarenAfstand tot voorzieningen: 10 min. lopenInbouwkasten: JaZonneterras op het dak: JaUitzicht op zee: NeeUitzicht op de golfbaan: NeeUitzicht op het zwembad: JaOpen uitzicht: JaPrivétuin: JaPrivézwembad: JaTerras: Ja, groot terrasGemeenschappelijk zwembad: NeeAirconditioning: JaGemeenschappelijke sauna: JaHuishoudelijke apparaten: InbegrepenBerging: JaMeubilair: Optioneel

Kenmerken

  • Prijs € 419.900
  • Woonoppervlakte 150 m2
  • Perceeloppervlakte 160 m2
  • Soort woning Vrijstaande recreatiewoning
  • Bouwvorm Nieuwbouw
  • Aantal slaapkamers 3
  • Aantal badkamers 2
  • Woningfaciliteiten
    • Zwembad

Location