Vrijstaande woning in Telemark, Noorwegen

€ 498.000

Model Fiskebekk

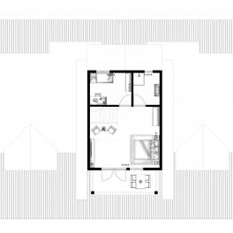
In deze ruime woning komt u binnen via de ruime hal met apart toilet. Daarnaast is er een fijne ruime woonkamer en een heerlijk leefkeuken met uitzicht op de bergen. De woning heeft drie slaapkamers beneden, een badkamer en een grote sauna. Boven is er nog een grote slaapkamer met een eigen badkamer. Kortom alle luxe en ruimte om een heerlijke tijd samen te hebben. Deze woning is geschikt voor een groot lang kavel.

Kenmerken

  • Prijs € 498.000
  • Woonoppervlakte 172 m2
  • Soort woning Vrijstaande recreatiewoning
  • Bouwvorm Nieuwbouw
  • Aantal slaapkamers 5
  • Aantal badkamers 2
  • Woningfaciliteiten
    • Sauna

Location