Geschakelde woning in Alicante, Spanje

€ 2.175.000

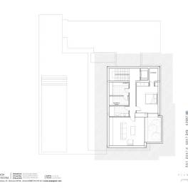
Elegante en Moderne Villa in BenifairóDit charmante nieuwbouwproject in Benifairó bestaat uit een stijlvolle woning met twee verdiepingen, ontworpen met een moderne en functionele indeling. Met een totale bebouwde oppervlakte van 395,71 m² is elke ruimte zorgvuldig gecreëerd om optimaal comfort en natuurlijk licht te garanderen.De begane grond is gewijd aan de gemeenschappelijke leefruimtes — ruime woon- en eetkamer, keuken en een logeerkamer — terwijl de bovenverdieping de slaapkamers huisvest, voor maximale privacy en prachtig uitzicht.Een perfecte combinatie van elegantie en functionaliteit in een rustige omgeving. Een ideaal huis om in te leven en te genieten!Slimme en Ruimtelijke IndelingLichte en ruime open woon-eetkamer met directe toegang tot het terras.Moderne open keuken met kookeiland en hoogwaardige Siemens inbouwapparatuur.Gastentoilet.Gelijkvloerse gastenkamer met en-suite badkamer.Toegang tot een prachtige buitenruimte met:Overloopzwembad van 12 x 4,5 meter met strak design.Ruim terras — perfect voor ontspanning en gezelligheid.Bovenverdieping:Drie royale slaapkamers, elk met eigen en-suite badkamer, voor optimaal comfort en privacy.Souterrain:Dubbele garage.Wasruimte en extra bergingen, praktisch ingericht voor maximale functionaliteit.Hoogwaardige KenmerkenTopafwerking: Technal aluminium kozijnen met veiligheidsglas, Roca kranen en hoogwaardige designmaterialen.Energieklasse A: Aerothermisch systeem, vloerverwarming, airconditioning via kanalen (warm/koud), LED-verlichting en voorbereiding voor zonnepanelen.Beveiliging & Comfort: Elektrische rolluiken, inbouwkasten, alarmsysteem binnen en voorbereiding voor alarmsysteem buiten + bewakingscamera’s.Omgeving: Fraai aangelegde tuin, automatische toegangspoorten en modern design — onderdeel van een exclusieve gemeenschap van slechts zes luxe villa’s.Een Unieke KansDeze villa is meer dan alleen een woning — het is een echte levensstijlkeuze, ontworpen om het hele jaar door te genieten van zon, rust en privacy. Ideaal als permanente woning of als hoogwaardige investering in een van de meest begeerde gebieden van de Costa Blanca.Luxe, duurzaamheid en prachtig uitzicht komen samen in deze droomvilla.

Kenmerken

  • Prijs € 2.175.000
  • Woonoppervlakte 395 m2
  • Perceeloppervlakte 500 m2
  • Soort woning Geschakelde recreatiewoning
  • Bouwvorm Nieuwbouw
  • Aantal slaapkamers 5
  • Aantal badkamers 4
  • Woningfaciliteiten
    • Zwembad

Location